The Ebony House
Faridabad | Residential | Architectural Design
Ebony House in Faridabad is a sophisticated luxury residence that harmonizes modern Indian architecture with traditional Vastu principles. The design language is defined by its tandoor stone façade and the extensive use of reclaimed ebony wood, lending the structure a distinctive material identity. Internally, double-height volumes create an expansive sense of scale and airiness, while the integration of premium natural materials ensures a timeless, high-end aesthetic tailored for contemporary living.
Ebony House in Faridabad is a sophisticated luxury residence that harmonizes modern Indian architecture with traditional Vastu principles. The design language is defined by its tandoor stone façade and the extensive use of reclaimed ebony wood, lending the structure a distinctive material identity. Internally, double-height volumes create an expansive sense of scale and airiness, while the integration of premium natural materials ensures a timeless, high-end aesthetic tailored for contemporary living.


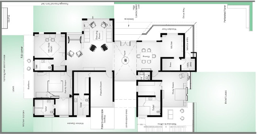
Zoning of the house has been done keeping basic Vastu rules in consideration along with a hierarchy of entrance and semipulic areas and towards the isolated private areas for each family member .Front boundary wall is single piece stone buried in the RCC Beam as an independent 7 feet tall boundary wall. One inch slits left all throughout between every plank gives a clue of entire house’s form from outside without compromising the privacy.
The Entry is from East direction and is from almost enter of the building. Entry foyer is a double height area that is a physical partition from both building blocks and connected by a bridge at upper terrace level. The Foyer has a see-through glass facades from both East and West directions and leading to the back stepped slit courtyard with landscaping. Top double height pocket has a solid wall in south direction to cut of the direct sun rays and has windows in other three directions with a view of clear sky.
After entering the foyer, left side is dining area leading to kitchen and front study bedroom. Other side has drawing room, a lounge seating and a huge passageway with a gigantic console. The flooring is a the dark grey indian marble (resembles Italian Safarjayante). The door frames are made up of reclaimed Ebony wood and has similar straight contrasting grains..
A strong element of the house is the floor to floor height of 12 feet along with the huge windows planned with inverted beams to make it look like a flat slab structure. There are no false ceilings in the house apart from few areas in Toilet. Top of the windows have a cantilever with a pocket on the terrace to plant suspended plants seen all throughout on the top of all windows throughout the house.
External facade of the house has Huge reclaimed ebony wood used throughout for doors and windows along with all grey river-washed Indian tandoor stone. The walls have white texture paint with wall washing light fixtures at certain places.
There is a unique top bamboo shed in south and west directions creating an envelope shielding the direct sun along with creating patterns throughout the facade.The bed back wall of front study bedroom is the only division between the room and a huge garden with a seating deck.
The Bedroom as seen in the 3D simulation is connected to the seating deck and the big lawn in front..
More
Mr Rahman's Residence
RESIDENTAIL | INTERIORS